Play Button Created with Sketch.

Take A Closer Look

Property Details


This is not just a light filled 4 Bedroom Semi detached home located in the vibrant St Clair west community!! This is the opportunity for entry level city living home ownership. This is the opportunity to tumble right in and get down to living. This is your opportunity to live on a tree lined street in a community that you thought was out of reach. This is the opportunity to take advantage of great local schools, parks, shops and restaurants that the St Clair strip has to offer. This is your opportunity to make new friends and be part of a neighbourhood that is urban and dynamic. It all starts somewhere for someone. Let this be your opportunity hurry home!!

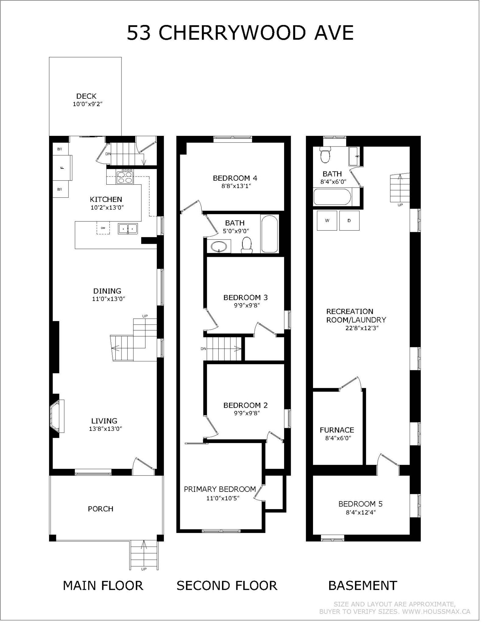
Light filled open plan main floor with a modern kitchen. Second floor features 4 equally sized bedrooms and a renovated modern bathroom. Easily live in as is or go from 4-3 bedrooms and create a charming primary with ensuite bathroom so many options here. The lower level has a separate entrance a 5th bedroom and oversized rec room, a full family bathroom and dedicated laundry easily converted into a second kitchen if you want an in-law or income suite in the basement. Walk out from the main floor onto your deck and into your deep east facing yard lots of space for play or easy summertime. Be right where you belong in this outstanding St Clair W community. Plus Easy parking on the licensed front pad.

Close to everything fabulous walking distance to the park Cedervale, Humewood, Wychwood that is, to the school hello Humewood PS, cafes Hunter coffee, restaurants too many to name, all are easily enjoyed from this outstanding location.

Bedrooms

4+1

Bathrooms

2

Property Type

Semi-Detached

Neighbourhood

Humewood-Cedarvale

Taxes/Year

6051.35

Lot Size

18x120

Parking

1

Already sounding like the home of your dreams? Reach out today to learn more.

  • This field is for validation purposes and should be left unchanged.